Aussenansicht des Wohnprojekts Muhlenstrasse 18 mit Holzfassade

HR Projekt GmbH & Gerleffis UG (haftungsbeschränkt)

Wohnen in Holz.
Natürlich modern.

12 hochwertige Eigentumswohnungen mit nachhaltiger Holzfassade in Bexbach-Kleinottweiler. KfW 55. Größtenteils Barrierefreie Wohneinheiten.

Mehr erfahren
12 Eigentumswohnungen
14 Tiefgaragenstellplätze
KfW 55 Förderfähig
Wohneinheiten Größtenteils barrierefrei

Nachhaltiges Wohnen mit höchstem Komfort

In der Mühlenstrasse 18 in Bexbach-Kleinottweiler entsteht ein modernes Mehrfamilienhaus mit 12 hochwertigen Eigentumswohnungen. Das Gebäude besticht durch seine markante Holzfassade und setzt damit ein klares Zeichen für nachhaltiges, zeitgemäßes Bauen.

Mit dem KfW-55-Standard, einer Luft-Wasser-Wärmepumpe und der Vorbereitung für Photovoltaik-Anlagen für einige Wohneinheiten wird das Gebäude den höchsten energetischen Anforderungen gerecht. Alle Wohnungen sind weitestgehend barrierefrei gestaltet, zwei davon rollstuhlgerecht.

Die 14 Tiefgaragenstellplätze mit optionaler Wallbox-Ausstattung runden das zukunftsorientierte Gesamtkonzept ab.

Architekturzeichnung der Sudost-Fassade mit Holzverkleidung

Qualität in jedem Detail

Holzfassade

Nachhaltige Holzfaser- oder Zellulose-Dämmung mit natürlicher Holzverkleidung für ein gesundes Wohnklima.

KfW 55 Standard

Höchste Energieeffizienz dank modernster Bauweise. Niedrige Nebenkosten garantiert. Förderung möglich.

Wärmepumpe

Luft-Wasser-Wärmepumpe für umweltfreundliches und kostengünstiges Heizen.

Barrierefrei

Alle Wohnungen sind größtenteils barrierefrei, zwei Einheiten sind rollstuhlgerecht gestaltet.

Moderne Bäder

Hochwertige Badausstattung mit modernen Fliesen für zeitlose Eleganz.

Eichenparkett

Edles Eichenparkett in allen Wohnräumen für Wärme und natürliche Schönheit.

Aluminium-Fenster

Hochwertige Aluminiumfenster mit hervorragender Wärmedämmung und Haltbarkeit.

Tiefgarage & Wallbox

14 Stellplätze mit optionaler Wallbox-Ausstattung für Elektromobilität.

Durchdachte Raumaufteilung

Grundriss Erdgeschoss

Erdgeschoss

Fünf Wohnungen mit direktem Zugang zu Terrassen oder Garten mit offenem Grundriss. Größtenteils barrierefrei, eine Einheit rollstuhlgerecht.

Grundriss 1. Obergeschoss

1. Obergeschoss

Fünf Wohnungen mit grosszügigen Balkonen und offenem Grundriss. Helle Räume durch bodentiefe Fenster. Größtenteils barrierefrei, eine Einheit rollstuhlgerecht.

Grundriss Dachgeschoss

Dachgeschoss

Zwei Wohnungen mit Dachterrassen und besonderem Raumgefühl. Exklusive Lage im obersten Geschoss. Größtenteils barrierefrei.

12 Eigentumswohnungen

8 von 12 Wohnungen verfügbar

Verkauft
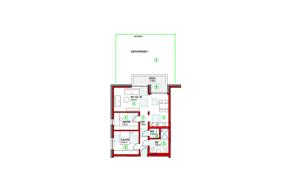
Grundriss Wohnung 1

Wohnung 1

EG
79,54 m²
3 Zimmer
1 Duschbad
TG-Stellplatz verfügbar
Grundriss Wohnung 2

Wohnung 2

EG
99,95 m²
2 Zimmer
Duschbad & WC
TG-Stellplatz verfügbar
489.755 €Anfragen
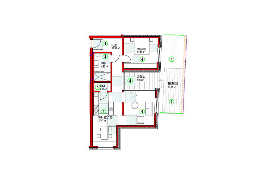
Grundriss Wohnung 3

Wohnung 3

EG
76,68 m²
2 Zimmer
Duschbad
TG-Stellplatz verfügbar
375.732 €Anfragen
Grundriss Wohnung 4

Wohnung 4

EG
84,89 m²
2 Zimmer
Duschbad
TG-Stellplatz verfügbar
415.961 €Anfragen
Verkauft
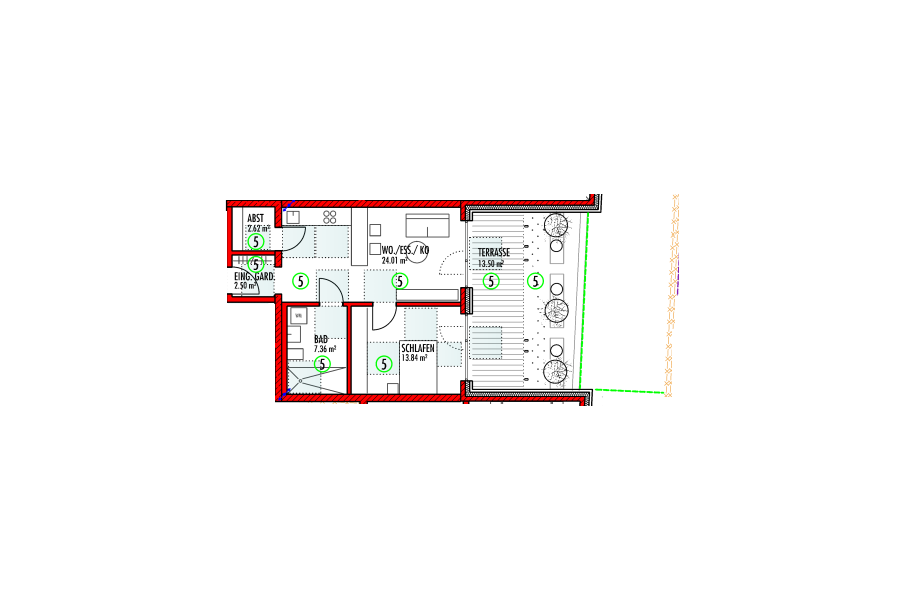
Grundriss Wohnung 5

Wohnung 5

EG
56,82 m²
2 Zimmer
Duschbad
TG-Stellplatz verfügbar
Verkauft
Grundriss Wohnung 6

Wohnung 6

1. OG
79,10 m²
3 Zimmer
Duschbad
TG-Stellplatz verfügbar
Grundriss Wohnung 7

Wohnung 7

1. OG
100,17 m²
2 Zimmer
Duschbad & WC
TG-Stellplatz verfügbar
490.833 €Anfragen
Grundriss Wohnung 8

Wohnung 8

1. OG
76,68 m²
2 Zimmer
Duschbad
TG-Stellplatz verfügbar
375.732 €Anfragen
Grundriss Wohnung 9

Wohnung 9

1. OG
77,70 m²
2 Zimmer
Duschbad
TG-Stellplatz verfügbar
380.730 €Anfragen
Grundriss Wohnung 10

Wohnung 10

1. OG
56,59 m²
2 Zimmer
Duschbad
TG-Stellplatz verfügbar
277.291 €Anfragen
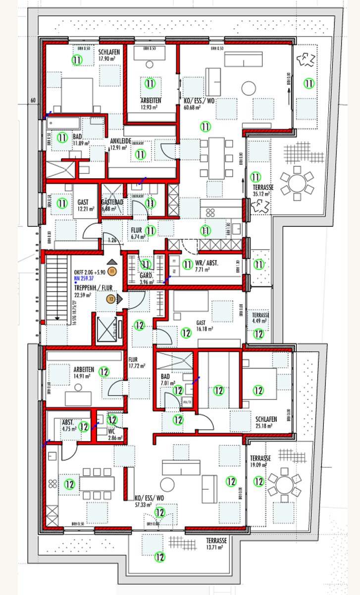
Grundriss Wohnung 11
Verkauft

Wohnung 11

DG
171,03 m²
4 Zimmer
2 Duschbäder
TG-Stellplatz verfügbar
Grundriss Wohnung 12

Wohnung 12

DG
164,23 m²
4 Zimmer
Duschbad & WC
TG-Stellplatz verfügbar
804.727 €Anfragen

Mühlenstrasse 18, Bexbach-Kleinottweiler

Das Wohnprojekt befindet sich in einer ruhigen, gewachsenen Wohngegend in Bexbach-Kleinottweiler. Die Kombination aus naturnahem Wohnen und guter Infrastruktur macht diesen Standort besonders attraktiv für Familien und Paare.

Zentrale Lage

Ruhige Wohnlage in Bexbach-Kleinottweiler mit guter Anbindung.

Anbindung

Bahnhof Bexbach in wenigen Minuten erreichbar. Nähe zur A6/A8.

Nahversorgung

Einkaufsmöglichkeiten, Ärzte und Apotheken in direkter Nähe.

Bildung & Freizeit

Schulen, Kindergärten und Naherholungsgebiete in der Umgebung.

Lageplan des Grundstücks an der Muhlenstrasse 18

Lageplan mit Gartenanlage

Kontakt

Interesse geweckt? Wir beraten Sie gerne.

Vereinbaren Sie einen persönlichen Besichtigungstermin oder fordern Sie weitere Unterlagen an. Wir freuen uns auf Ihre Anfrage.

Vertrieb

Gerleffis UG (haftungsbeschränkt)

Exposé anfordern

Erhalten Sie das vollständige Exposé mit allen Grundrissen, Baubeschreibung und Preisliste. Kontaktieren Sie uns telefonisch oder per E-Mail.